技術介紹
既有建筑物改造中,功能改造是最重要的,許多功能改造都涉及到原有構件快速、大幅度,也就是成倍、甚至成數倍要增加剛度和強度。現有混凝土構件粘接加固一般采用粘鋼板、粘碳纖維布進行加固,只能有限提高構件的強度(提高的幅度不超過40%),且無法提高構件的剛度。在實際工程中,經常需要快速、大幅度提升結構承載力,基于此,巨成結構提出了粘接型鋼加大截面加固法,適用于各行各業的結構、國防工程和搶險工程等需要大幅度提高構件的強度與剛度。
粘接型鋼加大截面加固法主要分為兩種:
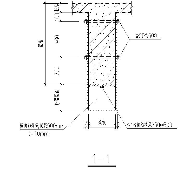
1、對于混凝土梁構件,通過粘結與錨結將型鋼梁與原混凝土構件連接成整體,通過加大構件的截面,大幅度提高其承載力和剛度。如圖1所示。
2、對于板構件,通過板底粘型鋼改變傳力途徑或減小跨度進行加固,包括板底粘接型鋼加固為密肋板的加法方法。如圖2所示。
圖1 混凝土梁粘接型鋼加大截面加固
圖2 混凝土板粘接型鋼改變傳力途徑加固
- 上一篇: 湖北移動通信辦公大樓加固改造工程
- 沒有了


