工業與民用建筑
1 老河口水泥筒倉爆倉應急處理工程
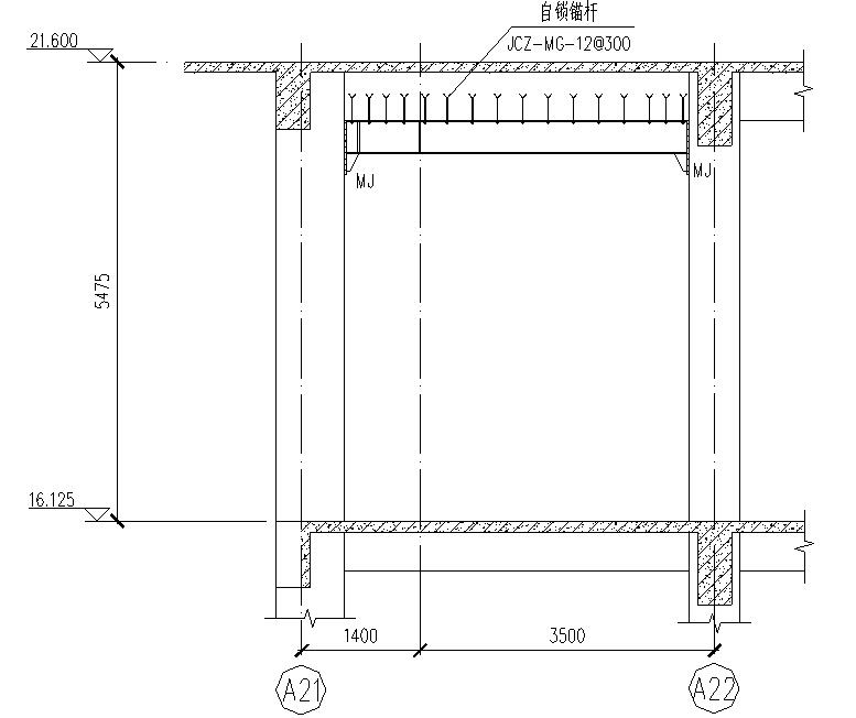
該項?位于湖北省老河口?泥?內,廠內?料均化庫建成于2009年。庫容量為2萬噸。該庫于2009年正式投產,為?座單體圓形鋼筋混凝?筒倉結構。該?料均化庫庫體外壁在2021年8?22?突然出現破洞損壞,鋼筋裸露,破壞?積達到56m2,庫體因內部壓強突變,庫頂板發?嚴重的內凹變形,與鋼?房相連接鋼構件受拉發?嚴重變形以及錯位。應急處理?式中包括包鋼板加固,包鋼加固中采??鎖錨桿替代化學植筋后錨固。
圖1 老河口水泥筒倉爆倉應急處理
2 安慶皖能垃圾發電??房加固改造工程
本?程為安慶皖能?活垃圾焚燒發電改建4號爐項??期垃圾?房加固改造設計?程。中科環保電?有限公司?區由安慶皖能中科環保電?有限公司負責建設,??期垃圾發電?2011年投產以來,已經?產運?近8年。在?期3號爐項?剛剛投產的情況下,統籌考慮3、4號爐建設,調整?藝流程及布置,對?期?房進?檢測鑒定和加固設計。
經改造加固設計,垃圾貯坑的內壁厚需加厚250mm,為了確保內壁新?混凝?的連接永久性,采?了?鎖錨桿代替化學植筋的?案。
圖2 安慶皖能垃圾發電??房加固改造
3 東方電機大電機房加固工程
東?電機?電機?房為單層多跨鋼筋混凝?排架結構?房,1959年開?建設,1964年、1972年、1988年分別再擴建,其中1跨為鋼結構,其余各跨均為鋼筋混凝?結構,排架柱均為混凝??字形截?柱,柱距均為6m。
?房?建成后未進?結構改造,亦未改變過使?功能,?直作為?產?房使?。?房吊?在使?過程中進?了更換,實際使?噸位較原設計有所提?。
經改造加固設計,對經升級改造后的屋?結構、吊?梁、柱?進?了常規加固。原設計柱加固??房基礎頂?處(即室內地坪標?以下),由于地?處有設備影響開挖,?法實施。故調整設計?案:在不破除地坪前提下,??鎖錨桿從地坪打孔?基礎頂?以下錨固深度,代替地?以下原加?截?受拉鋼筋。
圖3 東方電機大電機房加固
4 湖北移動辦公大樓改造加固工程
本工程于2012年實施。湖北移動通信辦公大樓原結構為普通辦公樓,樓面使用荷載為2.5kN/m2,改造后部分樓面使用荷載需提高至12kN/m2,荷載等級提高幅度較大,部分梁、板承載力嚴重不滿足要求,需增大梁、板截面尺寸。若采用用常規混凝土增大截面的方法,一來增加的厚度加大、自重較大,導致原結構基礎和框架柱需要加固;二來混凝土增大截面加固施工周期長,現場施工時間不允許。故本項目采用外粘型鋼加大截面的方式大幅度提高梁、板的承載力。加固處理面積為5000平方米,用時僅38天。
粘接型鋼加固過程使??鎖錨桿替代化學植筋進?混凝?后錨固,解決?期使?耐久性的問題。
圖4 湖北移動辦公大樓改造加固
5 長沙宜家購物中心加固工程
?沙宜家購物中?項?因新增防?卷簾造成的樓?荷載增加,經加固設計,對混凝?板厚不滿?設計要求處采?板下新增型鋼結構加固處理。
新增型鋼采??鎖錨桿替代化學植筋進?后錨固處理,?鎖錨桿植?深度淺、錨固可靠,同時解決?期使?耐久性的問題。
圖5 長沙宜家購物中心加固
6 武漢新業大廈陽臺改造工程
武漢新業?廈位于江漢區漢??年路185號,是由湖北省煙草公司規劃、開發的?區。計劃將陽臺懸挑板由原1.2m增寬?1.8m,采??鎖錨桿替代化學植筋進?后錨固,錨固更可靠,解決?期使?耐久性的問題。
圖6 武漢新業大廈陽臺改造
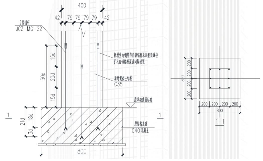
7 武漢弘毅大酒店基礎加固工程
本?程為武漢?學弘毅?酒店基礎加固?程,外露基礎鋼筋銹蝕,切除原有鋼筋,重新植筋,本?案采??鎖錨桿替代化學植筋,克服了化學植筋耐久性能差、安全性低、不能做到與原結構同壽命的缺點。
由于本項?是采??鎖錨桿替代化學植筋,錨固?度是按照等強代換的原則進?計算,并考慮群錨效應,將群錨范圍內的總?積等效為單?錨桿的?積,再按照相關規范規定計算基本錨固深度及錨固承載?。
圖7 武漢弘毅大酒店基礎
8 湖北工業大學實訓大樓改造工程
湖北工業大學實訓大樓于2006年建成,主體為一棟六層框架結構房屋,底部設有架空層。房屋整體平面呈矩形,總長116.400m,寬78.000m,總建筑面積43618.000㎡。架空層層高為3.2m,一~六層層高均為4.2m。建筑總高為28.4m,該房屋樓(屋)面板均為鋼筋混凝土現澆板,屋面為上人平屋面。其中第5~6層及屋面層結構1-9/A-J軸區域及26-31/J-P軸區域為大懸挑有粘結后張法預應力混凝土梁結構,使用至今該區域外部懸挑區域填充墻出現斜向開裂及墻體與梁交界處水平開裂,外墻瓷磚掉落,滲水等病害現象。現需對開裂墻體及梁進行注縫膠加固處理,對局部區域進行包鋼加固及局部病害修復。
圖8 湖北工業大學實訓大樓改造
9 武漢科技大學天佑醫院加固工程
本工程為武漢科技大學附屬天佑醫院應對重大突發公共衛生事件綜合能力提升工程,其中感染樓為三層磚混結構(局部四層),佑安樓為五層磚混結構,并設有一層地下室。分別建于上世紀70年代與80年代,因功能及設備改造需求,需增加多處墻體開洞,增加機房及屋面設備承重,所以需對原結構進行加固。
圖9 武漢科技大學天佑醫院加固工程


